Theatre Charlotte
Location: Charlotte, NC
Client: Theatre Charlotte
Project Team:
Tobin, PLLC – Architects
David S. Tobin, AIA, Principal-in-Charge, Lead Designer
Matthew Poet, Designer
SKA Consulting Engineers – Structural Engineering
Buford Goff – Mechanical, Plumbing, Electrical Engineering
Banks Engineering – Civil Engineering
RM Rutherford Associates – Cost Estimating
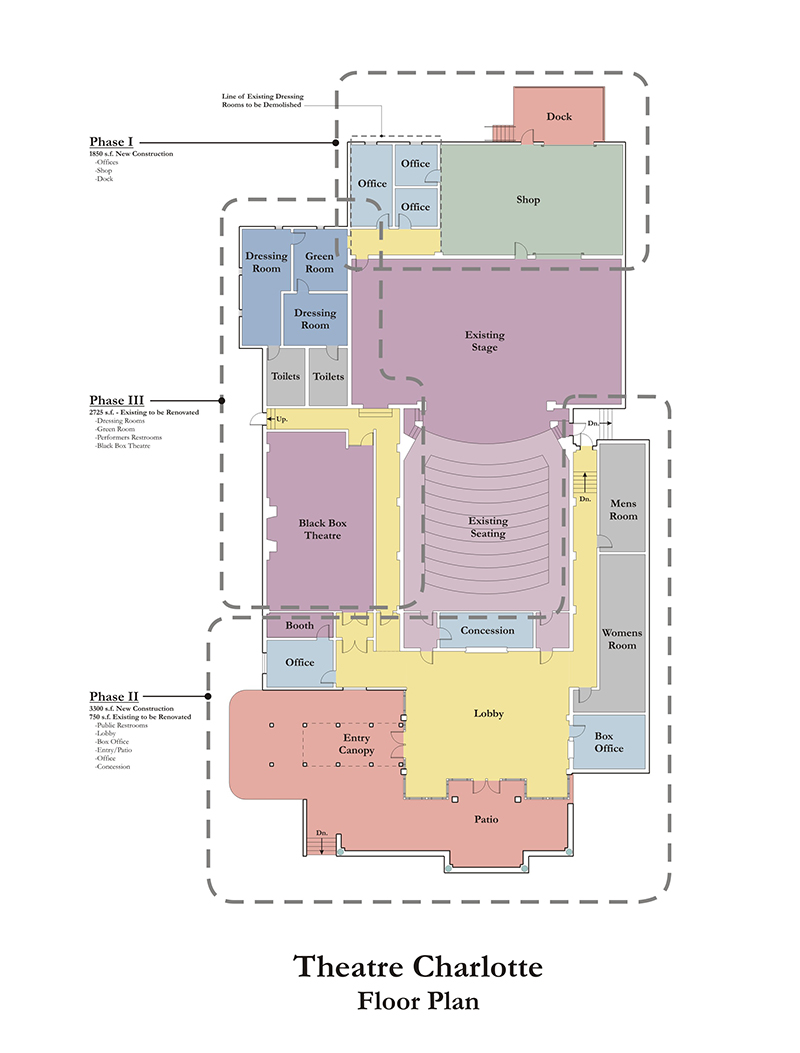
Concept development and feasibility study for 15,500 g.s.f. renovation and expansion of the historic C.1941 Theatre Charlotte Playhouse in Charlotte, NC.
Tobin has conducted a series of design, planning, and facility assessment assignments for Theatre Charlotte since 2001. Our most recent task was unexpected and urgent. In the early morning hours of December 28, 2020, an electrical fire spontaneously broke out beneath the auditorium floor. Fortunately, the smoke triggered an alarm, prompting the fire department to respond and extinguish the fire before significant structural damage occurred. However, the theatre suffered extensive smoke damage throughout plus localized water damage, making the theatre unoccupiable until restoration work could be completed.
While the theatre management handled the initial insurance claims and restoration process, Tobin was engaged to develop a detailed schematic design and feasibility study to expand and renovate the theatre based on earlier studies. The goal was to integrate the restoration into a broader renovation and significant expansion project. The proposed 10,200 g.s.f. renovation and 5,300 g.s.f. expansion included refurbishing backstage dressing rooms, green room, and scene shop. It also involved converting the existing lobby into a rehearsal / black-box performance space, along with adding a larger new lobby area, new restrooms and concession facilities. Although the feasibility study was successful and well received, the process of restoring the theatre to full occupancy after the fire was complex, restrictive, and demanding. It took more time and resources than initially expected, pushing plans for further renovations and expansion to the future, beyond the fire restoration. The theatre reopened in December 2022, nearly two years after the fire.











