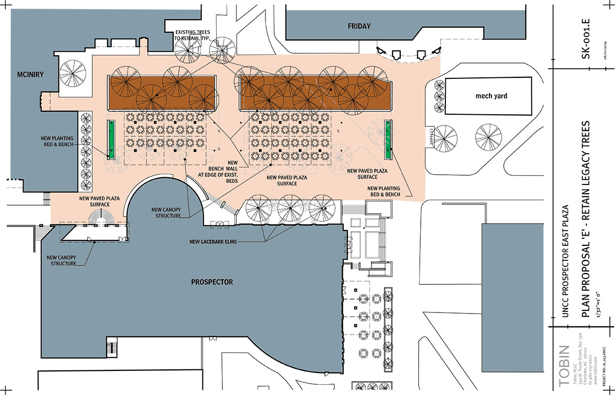
UNC Charlotte engaged Tobin, the original architect of the 2010 Prospector Hall modifications, to program and study design options for redesigning the existing exterior plaza hardscape and softscape adjacent to the Prospector Hall.
The Prospector Hall is a mid-campus structure with multiple dining venues, a campus post office, and a copy center. The consistent popularity and commercial success of the dining venues for students, faculty, and visitors frequently lead to overflowing demand. When weather allows, outdoor seating and tables are desirable places to gather. Our UNC Charlotte client wanted to explore the feasibility of creating more substantial sun and weather protection for outdoor dining and gathering. Tobin studied a series of canopy structures and landscape configurations based on the established exterior canopy design prototype, a signature design element in the original 2010 renovation of Prospector Hall.
















